トップページ > 平塚市出縄 

販売物件情報

  • お気に入りリストを見る
  • 物件情報を印刷する
  • プリンタの設定で「背景を印刷する」と設定しないと「背景画像」が印刷されないことがあります。印刷の際には、必ず「背景を印刷する」設定にしてください。

新築一戸建て

平塚市出縄 

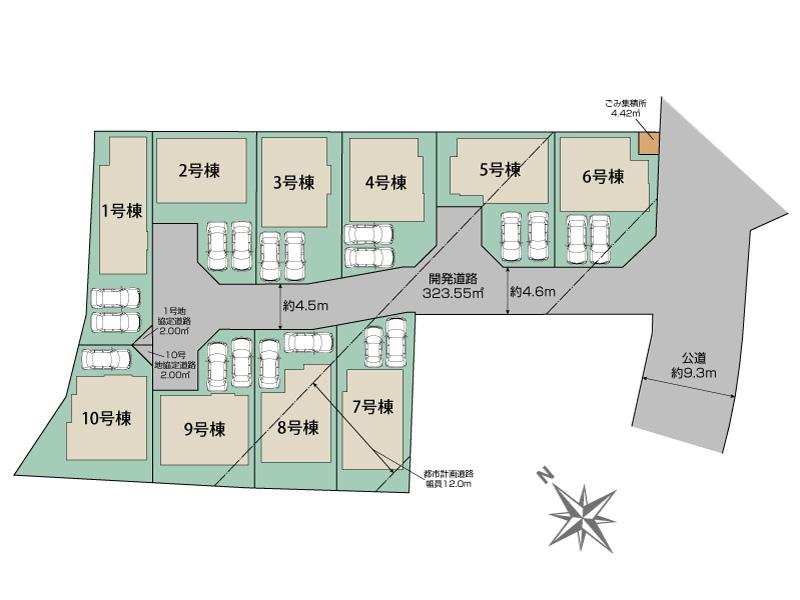
画像

この物件のお支払い例

頭金0円/ボーナス払い0円

物件価格3,680万円

月々の支払い97,152

※上記支払例の借入条件:金利0.6%、借入総額3,680万円、借入期間35年

所在地・交通

所在地 平塚市出縄 
最寄駅 東海道線 平塚 徒歩分数
最寄バス停 高村団地 徒歩分数 6分
小学校校区 平塚市立勝原小学校 / 平塚市立旭小学校 中学校校区 平塚市立山城中学校 / 平塚市立旭陵中学校

※学校区は住所から自動判定したものであり、保証できる情報ではございません。正確な学校区はお問い合わせ下さい。

お問い合わせフォームはこちら

「人型アイコン」を地図上にドラッグすることで『Google Street View』に切り替わります。

※地図上の「対象地」は「〒254-0915 神奈川県平塚市出縄」の場所を指しています。実際の場所ではない場合がございます。詳しくはお問い合わせください。

お問い合わせフォームはこちら

物件概要

価格 3,680万円 種目 新築一戸建住宅
間取り 4LDK 間取り内訳
土地面積 126.57㎡ 私道面積
建物面積 99.25㎡ 建物構造規模 木造 2階建
築年月(竣工月) 2025年12月 駐車場 有 
建ぺい率/容積率 60%/200% 都市計画 市街化区域
接道状況    
地目 宅地
土地権利 所有権 地勢
用途地域 第一種中高層住居専用地域
現況 未完成 取引態様 媒介
建築確認番号 第R07SHC116737号

取引条件等

引渡し 期日指定 2026年1月下旬

その他

設備 温水洗浄便座、追焚機能、浄水器、食器洗浄乾燥機、洗髪洗面化粧台、電気、プロパンガス、上水道、下水道、複層ガラス、モニタ付インターホン、[火災警報器等設置済]
特徴 [BELS/省エネ基準適合認定]
諸条件・相談
情報登録日 2025年9月24日 情報更新予定日 2025年10月28日
物件番号 151224
この物件を見た人の多くは下記の物件も見ています!
平塚市平塚3丁目  [4,790万円] [4LDK]
平塚市須賀  [2,499万円] [3LDK]
平塚市広川  [3,280万円] [4LDK]
平塚市東真土2丁目  [3,780万円] [4LDK]
最近見た物件

ページの先頭へ

住宅購入の相談がしたい方へ!相談・見積もりは無料!今ならQUOカード最大1,000円分プレゼント!今すぐ来店予約!

Copyright (C) e・ミライフ, All Rights Reserved.