トップページ > 高座郡寒川町一之宮4丁目 

販売物件情報

  • お気に入りリストを見る
  • 物件情報を印刷する
  • プリンタの設定で「背景を印刷する」と設定しないと「背景画像」が印刷されないことがあります。印刷の際には、必ず「背景を印刷する」設定にしてください。

土地

高座郡寒川町一之宮4丁目 

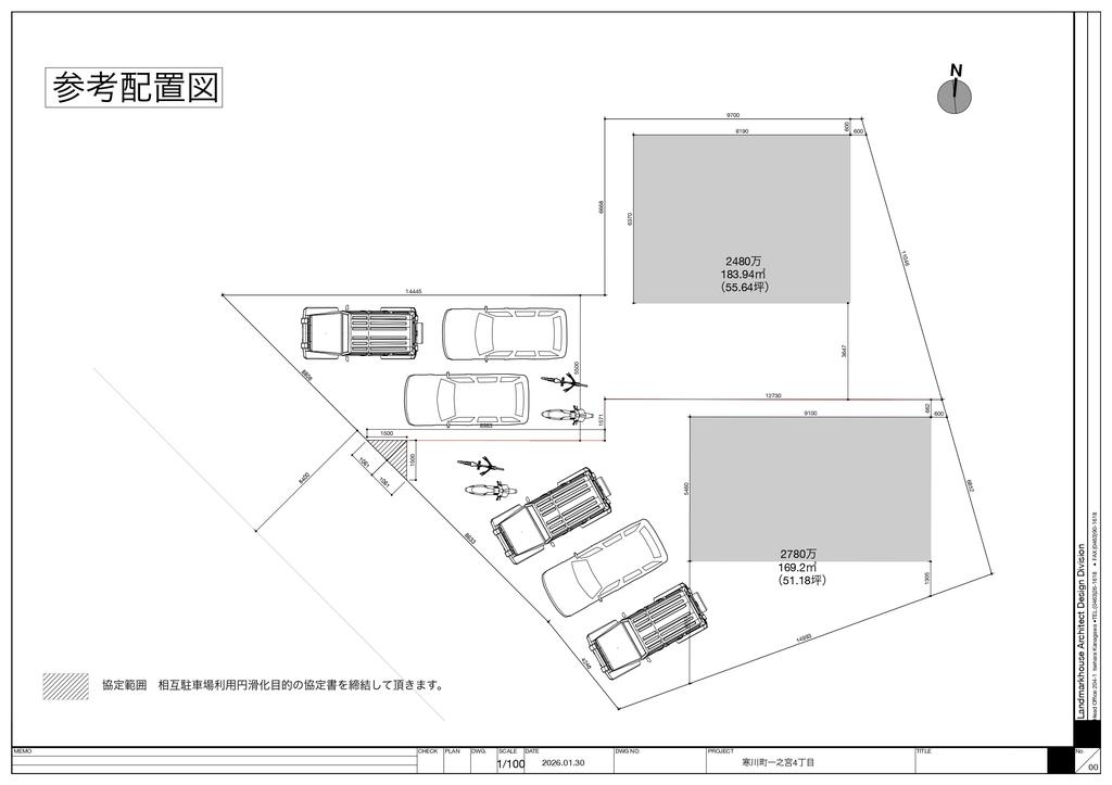
画像

この物件のお支払い例

頭金0円/ボーナス払い0円

物件価格2,480万円

月々の支払い65,472

※上記支払例の借入条件:金利0.6%、借入総額2,480万円、借入期間35年

所在地・交通

所在地 高座郡寒川町一之宮4丁目 
最寄駅 相模線 寒川 徒歩分数 12分
最寄バス停 徒歩分数
小学校校区 寒川町立一之宮小学校 中学校校区 寒川町立寒川中学校

※学校区は住所から自動判定したものであり、保証できる情報ではございません。正確な学校区はお問い合わせ下さい。

お問い合わせフォームはこちら

「人型アイコン」を地図上にドラッグすることで『Google Street View』に切り替わります。

※地図上の「対象地」は「日本、〒253-0111 神奈川県高座郡寒川町一之宮4丁目」の場所を指しています。実際の場所ではない場合がございます。詳しくはお問い合わせください。

お問い合わせフォームはこちら

物件概要

価格 2,480万円 種目 売地
土地面積 183.94㎡ 私道面積
建ぺい率/容積率 60%/200% 都市計画 市街化区域
接道状況 南西5.4m 公道 接面8.8m 位置指定無   一方道路
地目 宅地
土地権利 地勢 平坦
用途地域 準工業地域
現況 更地 取引態様 媒介

取引条件等

引渡し 相談

その他

条件等
設備
諸条件・相談
情報登録日 2026年2月8日 情報更新予定日 2026年3月6日
物件番号 158467
この物件を見た人の多くは下記の物件も見ています!
高座郡寒川町一之宮3丁目  [2,180万円]
最近見た物件

ページの先頭へ

住宅購入の相談がしたい方へ!相談・見積もりは無料!今ならQUOカード最大1,000円分プレゼント!今すぐ来店予約!

Copyright (C) e・ミライフ, All Rights Reserved.