トップページ > 平塚市桃浜町 

販売物件情報

  • お気に入りリストを見る
  • 物件情報を印刷する
  • プリンタの設定で「背景を印刷する」と設定しないと「背景画像」が印刷されないことがあります。印刷の際には、必ず「背景を印刷する」設定にしてください。

新築一戸建て

平塚市桃浜町 

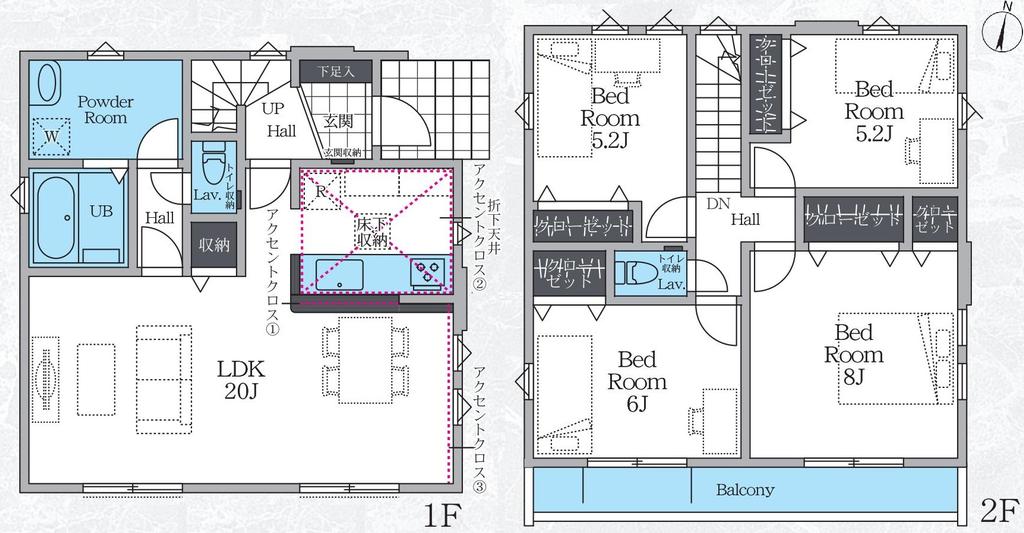
画像

この物件のお支払い例

頭金0円/ボーナス払い0円

物件価格6,199万円

月々の支払い163,653

※上記支払例の借入条件:金利0.6%、借入総額6,199万円、借入期間35年

所在地・交通

所在地 平塚市桃浜町 
最寄駅 東海道線 平塚 徒歩分数 9分
最寄バス停 徒歩分数
小学校校区 平塚市立花水小学校 中学校校区 平塚市立浜岳中学校

※学校区は住所から自動判定したものであり、保証できる情報ではございません。正確な学校区はお問い合わせ下さい。

お問い合わせフォームはこちら

「人型アイコン」を地図上にドラッグすることで『Google Street View』に切り替わります。

※地図上の「対象地」は「〒254-0815 神奈川県平塚市桃浜町」の場所を指しています。実際の場所ではない場合がございます。詳しくはお問い合わせください。

お問い合わせフォームはこちら

物件概要

価格 6,199万円 種目 新築一戸建住宅
間取り 4LDK 間取り内訳
土地面積 107.84㎡ 私道面積
建物面積 103.5㎡ 建物構造規模 木造 2階建
築年月(竣工月) 2026年5月 駐車場 有 
建ぺい率/容積率 70%/160% 都市計画 市街化区域
接道状況 東4m 公道  北4m 公道   角地
地目 宅地
土地権利 所有権 地勢
用途地域 第一種中高層住居専用地域
現況 未完成 取引態様 媒介
建築確認番号 第25UDI1W建11416号

取引条件等

引渡し 相談

その他

設備 公営管、本下水、都市ガス、合流 ■道路後退部分/15.83㎡
特徴
諸条件・相談
情報登録日 2026年3月1日 情報更新予定日 2026年4月7日
物件番号 159574
この物件を見た人の多くは下記の物件も見ています!
平塚市東真土2丁目  [3,580万円] [4LDK]
平塚市南原2丁目  [4,290万円] [4LDK]
平塚市纒  [3,580万円] [3LDK]
平塚市御殿4丁目  [3,999万円] [4LDK]
最近見た物件
東建ニューハイツ戸塚 間取り:2LDK 専有面積:59.12㎡

ページの先頭へ

住宅購入の相談がしたい方へ!相談・見積もりは無料!今ならQUOカード最大1,000円分プレゼント!今すぐ来店予約!

Copyright (C) e・ミライフ, All Rights Reserved.